HATCH COVER SUPPORT FOR PORT CRANE
- Container carrier vessels do not have the possibility to leave their hatch covers on board .
- The hatch cover must be handled with STS cranes and placed on the quay .
- Most ports have their own methods and dispositions to place the hatch cover while the cargo containers are transferred from and into the hold of the ship.
- Everyone who works in ports knows that these areas are valuable and expensive, since they are necessary for the traffic of port trucks, especially in the back reach, which is usually used for the temporary storage of containers.
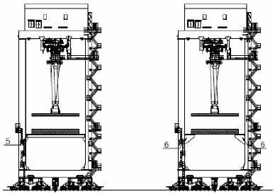
HATCH COVER SUPPORT FOR PORT CRANE
- GB Port Innovation has developed a device to hold the Hatch Cover safely on board the STS crane. It is a simple solution to release quay areas used to stack the hatch covers of the ships.
- The device consists of either a platform steel structure, or a special support, attached to the STS crane structure. The hatch covers are stacked on it, using the crane spreader in the same way the crane operator currently handles the hatch covers.
- The Hatch Cover Support will be designed according.


- If the system is implemented when planning a new container terminal, construction costs can be reduced.
- If it is used in a existing port terminal, the container terminal can recover an area which can be used for container storage, for traffic of port trucks or to improve the layout of the yard equipment and stacking blocks.
- Storage capacity can be increased to about 5 containers in depth, 6 containers in height, and the complete quay length and could increase the load mobilized in the same proportion.







Zenón Herrera 3515, Chiguayante, Concepción, CHILE
Phone: +56 41 2980997 / Mobile: +56 9 98248084
gbobenrieth@gbportinnovations.com
- This innovation is protected in China, Russia and Chile (patent granted), and several patent applications are being prosecuting in other countries around the world.
Zenón Herrera 3515, Chiguayante, Concepción, CHILE
Phone: +56 41 2980997 / Mobile: +56 9 98248084
gbobenrieth@gbportinnovations.com